Details

A Distinctive Riverdale Residence with Rare Coach House

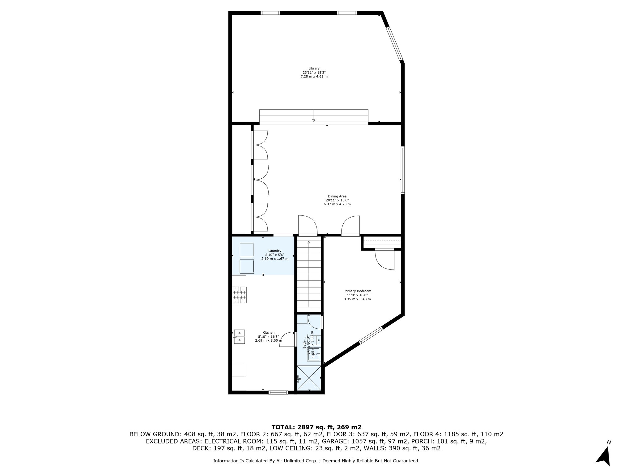
Welcome to 270 Withrow Avenue, an exceptional property in the heart of Riverdale—proudly featured in Toronto Life magazine. Built circa 1926, this home is steeped in history and timeless character, thoughtfully enhanced with modern upgrades for today’s lifestyle.

The main house showcases elegant living spaces, three bedrooms, and three bathrooms, complemented by a new roof, furnace, air conditioning, and windows for effortless comfort. A private lower-level suite with separate entrance offers versatility for extended family or discerning guests.

The detached coach house, an expansive 1,980 sq. ft. retreat, elevates the property’s appeal with a full kitchen, generous living and dining areas, a bedroom, and a spa-inspired bathroom. Whether envisioned as a luxurious guest residence, creative studio, or income-generating suite, it provides unmatched flexibility.

Set on a coveted tree-lined street, with parking for five and steps from Withrow Park, renowned schools, and vibrant Danforth amenities, this home offers a rare opportunity to own one of Riverdale’s most celebrated and historic addresses.

  • CA$2,799,000
  • 4 Bedrooms
  • 4 Bathrooms
  • 5 Parking Spots
  • Built in 1929

Videos

3D Tour

Content Coming Soon

Images

Floor Plans